Основные этапы ремонта в новостройке
Обычно к ремонту приступают не сразу после возведения дома. Строительные материалы дают усадку со временем, на это уходит от 6 месяцев до 5–6 лет в зависимости от материала. Лучше подождать, пока этот процесс закончится, и уже потом ремонтировать квартиру. Так отделка прослужит дольше.
Рассказываем, с чего начать ремонт в новостройке и из каких базовых этапов он состоит.
1. Планировка/перепланировка
Обычно в новостройках уже продумана планировка — расположение комнат и функциональных зон. Но новые владельцы порой хотят изменить её под свои нужды. Если это ваш случай — заранее продумайте, где и как всё будет:
- как будут располагаться перегородки;
- какой будет площадь итоговых комнат;
- где будут находиться мокрые зоны и так далее.
Перепланировку всегда нужно согласовывать. Её проект готовят со специалистом, а затем отправляют в ответственный орган: городскую администрацию или жилищную инспекцию. Подробнее об этом процессе можно прочитать в отдельной статье.
Мелкие изменения, например расположение розеток и светильников, не считаются перепланировкой. Их не нужно согласовывать, но, опять же, стоит продумать это ещё до ремонта в новостройке.
2. Дизайн-проект
Дизайн — это не только картинки. В первую очередь это планирование и проектирование будущих пространств для жизни. Лучше обращаться в этом вопросе к профессионалам, а не действовать по наитию. Или хотя бы подробно продумать план будущего ремонта в новостройке.
Проекты бывают разными — по детализации, количеству изменений и стоимости. Вот что стоит в них учесть:
- Изменения в инженерных сетях. Например, где будут располагаться розетки и выключатели, выходы для освещения, трубы и сантехника.
- Материалы отделки. Например, что положить на пол в прихожей — ламинат или плитку. Учитывайте назначение комнаты: в мокрой зоне вроде ванной не стоит клеить обои, если они не из водостойких материалов.
- Размеры и расположение предметов. К примеру, где поставить шкаф, чтобы не задевать его входной дверью.
- Освещение. Например, где расположить источники света, чтобы в комнате не было слишком темно, особенно в помещениях без окон вроде ванной и коридора.
- Сценарии жизни. Какая зона будет рабочей, а какая — предназначаться для отдыха. Как планируется использовать каждый участок пространства.
3. Черновой этап
Иногда этот этап ремонта в новостройке можно пропустить: многие квартиры сдают уже с предчистовой отделкой. Но бывает и так, что покупатель получает бетонную коробку с голыми стенами.

Слева — предчистовая отделка, после которой квартира готова к финальному этапу ремонта. Справа — квартира без отделки, в ней сперва нужно провести черновой ремонт. Источник
Если жильё продаётся без отделки, начать нужно с чернового ремонта:
- возвести межкомнатные перегородки, если их нет;
- сделать разводку коммуникаций;
- заготовить отверстия под розетки, выключатели, светильники;
- выровнять стены и потолок;
- уложить на пол стяжку;
- при необходимости заменить окна и двери.
На этом же этапе могут монтировать радиаторы отопления и ванну. В отличие от других предметов, их ставят заранее, чтобы точнее выровнять относительно стен и пола и надёжнее герметизировать.
4. Чистовая отделка
Это последний этап ремонта в новостройке — после его завершения в квартире можно жить. Во время чистовой отделки:
- поверхности финально выравнивают;
- если нужно, устанавливают натяжные потолки;
- стены отделывают обоями, штукатуркой или краской;
- на полы кладут покрытие;
- в нужных местах монтируют розетки, выключатели, светильники;
- квартиру обставляют мебелью.
После окончания всех работ важно позаботиться о строительном мусоре. Его необходимо утилизировать по правилам — отвезти на специальные полигоны, а не оставлять у дома.
Когда ремонт в новостройке завершён, делают генеральную уборку — избавляются от остатков пыли и мусора. Затем можно заезжать и жить.
С чего начать ремонт в новостройке с черновой отделкой
Если вы купили жильё без отделки, вам фактически нужно будет сделать ремонт квартиры в новостройке с нуля. Разберём его подробнее, чтобы сориентироваться в будущих работах.
Планирование и проектирование. Подумайте, какой вы хотите видеть будущую квартиру. Например, собираетесь ли объединять кухню с гостиной, как планируете размещать сантехнику и кухонный гарнитур, будете ли делать тёплые полы. Сразу уточните несколько моментов:
- Понадобится ли согласовывать перепланировку. Это придётся сделать, если вы собираетесь внести масштабные изменения: снести или построить стену, передвинуть дверь, объединить комнаты.
- В каком стиле вы хотите оформить квартиру. Например, скандинавский, японский, лофт и так далее. Можете посмотреть примеры стилей в интернете или проконсультироваться с дизайнером.
- Где и как вы собираетесь расположить предметы. Важны даже мелочи. Например, расположение розеток логичнее продумывать относительно спальной и рабочей зоны — рядом с кроватью и столом.
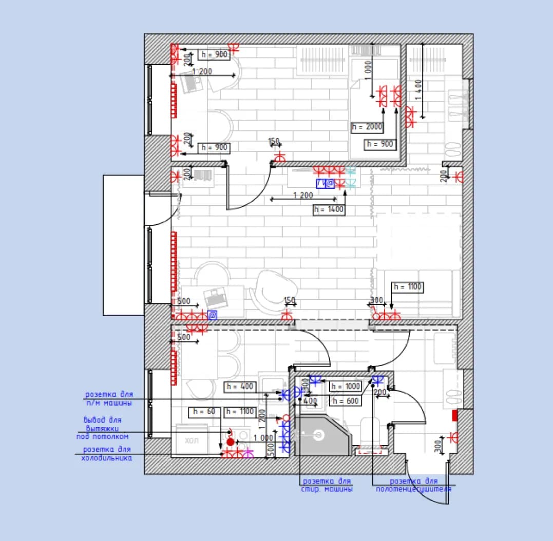
Когда вы продумаете всё, что считаете важным для ремонта в новостройке, можете составлять проект. Обычно в нём несколько частей: размещение перегородок, план разводки труб и проводки, схема освещения и так далее.

Например, так может выглядеть проект разводки электрики. Источник
Даже если мебель и обои вы хотите выбрать сами, технические планы вроде разводки труб всё же стоит оставить специалисту. Такие вещи требуют специфических знаний — продумать их с нуля сложно.
Составление сметы. Стоит заранее подсчитать, во сколько обойдётся ремонт в новостройке. Чем точнее — тем лучше. Вот что для этого нужно сделать:
- Замерить все поверхности — высоту потолков, площадь стен и пола. Стоимость многих работ рассчитывается по площади, поэтому её важно знать для расчётов. А самостоятельные измерения часто точнее, чем данные в документах от застройщика.
- Составить список работ — что именно понадобится сделать, вплоть до самых мелких деталей.
- Узнать стоимость работ — лучше сравнить предложения от разных подрядчиков, чтобы понимать вилку цен.
- Выбрать материалы и мебель, а также посмотреть, сколько они стоят и сколько их понадобится. Так вы сможете прикинуть их суммарную стоимость.
- Учесть дополнительные расходы — например, на аренду или покупку инструмента, доставку материалов, вывоз мусора.
- Заложить сумму на непредвиденные траты — 5–15% от уже получившейся стоимости. Это поможет, если что-то подорожает или работ понадобится больше, чем ожидалось.
Можно пользоваться специальными программами для составления смет. Или обратиться к профессионалам: они могут не только создать проект, но и подсчитать стоимость работ.

Например, сметные калькуляторы есть у многих производителей и продавцов стройматериалов. Источник
Изначальные расчёты не всегда точные. Цены могут измениться раньше, чем закончатся работы. Но смета всё равно нужна: это отправная точка, чтобы выделить бюджет на ремонт в новостройке.
Подготовка к работам. Есть вещи, которые стоит продумать ещё до начала ремонта в новостройке, например:
- Выбрать подрядчика. Сравните разные бригады: сколько стоят их услуги, какие о них отзывы, какие примеры работ. Можете искать рабочих по рекомендациям знакомых или даже посещать профильные мероприятия, чтобы лучше погрузиться в тему.
- Заключить договор. С подрядчиками лучше работать официально: так и вы, и они будете защищены в случае разбирательств. Внимательно прочитайте договор — в нём должны быть указаны полные условия вашего сотрудничества.
- Закупить материалы. Обращайте внимание на отзывы, информацию на профильных сайтах и советы нанятых рабочих. Покупать стоит не все материалы сразу, а только ту часть, которая понадобится в ближайшее время.
- Организовать в квартире возможности для ремонта. Например, временное электроснабжение и доступ к воде. Впрочем, иногда рабочие сами имеют при себе всё необходимое.
- Защитить места общего пользования. Например, укрыть полы в подъезде картоном, а стыки — скотчем, чтобы не запачкать их строительной пылью.
- Проверить условия закона о тишине. Уточните, в какое время в вашем городе можно шуметь, и попросите рабочих соблюдать эти правила. Если в новостройке уже кто-то живёт — он может пожаловаться на шум в неположенное время.

Чтобы в квартире был свет на время работ, бригады используют временные электрощитки. Источник
Монтаж перегородок. Иногда квартиру сдают даже без межкомнатных стен — так называемая свободная планировка. Собственник сам может расставить перегородки, как ему удобно. Но если он отходит от типовых планов, это считается перепланировкой, и её нужно узаконивать. С точки зрения материалов для перегородок есть разные варианты:
- гипсокартон;
- пазогребневые плиты;
- газобетонные блоки и так далее.
Если в квартире уже есть межкомнатные стены, а возводить новые или сносить старые не планируется, этот этап можно пропустить.
Изоляция. Если вы планируете сделать шумо- или гидроизоляцию квартиры, её стоит проводить до работы с коммуникациями. И если шумоизоляция — вопрос удобства, то гидроизоляция в мокрых зонах крайне важна. Благодаря ей влага не будет проникать в материалы и вы не затопите соседей.
Прокладка инженерных коммуникаций. Ремонт с нуля в новостройке без отделки часто подразумевает разводку коммуникаций. С ними работают в такой последовательности:
- Отопление. Радиаторы есть даже в квартирах без отделки, но они обычно самые простые — многие заменяют их. И даже если вы планируете оставить вариант от застройщика, обязательно проверьте, герметичны ли соединения.
- Сантехника и канализация. Следующим этапом протягивают трубы и выводы для будущей сантехники. А ещё каркасы для некоторых скрытых систем, например подвесного унитаза.
- Электропроводка. В квартире без отделки уже проведены базовые трассы электропроводки — большие кабели. Во время ремонта в новостройке их разводят к местам, где будут находиться розетки, светильники и выключатели. Тогда же собирают электрощиток и монтируют подрозетники.

Проводку кладут вдоль стен и потолка, сразу предусматривают отверстия для розеток и выключателей. Провода тянут от трасс — больших групп кабелей, по которым в квартиру идёт электричество. Источник
Выравнивание поверхностей. Следующий этап — выравнивание стен штукатуркой и стяжка пола. Эту работу оставляют напоследок, и перед ней обязательно проверяют, точно ли разводка и изоляция проведены без ошибок. Если там что-то окажется не так, стяжку и штукатурку придётся демонтировать, чтобы добраться до коммуникаций.
Установка оконных и дверных блоков. Зачастую окна в квартире уже есть, но самые простые. Собственник может поменять их на более красивые и надёжные стеклопакеты. А ещё смонтировать дверные рамы или арки — в зависимости от дизайн-проекта.
Особенности ремонта в новостройке whitebox
Если квартира продаётся с предчистовой отделкой, или whitebox, — значит, черновые работы уже проведены. Ремонт в новостройке сводится к чистовой отделке: поклейке обоев, укладке покрытия, закупке и монтажу сантехники и электрики. Но и тут стоит учесть свои особенности.
Первые этапы ремонта такие же, как в случае с квартирой без отделки: планирование, проектирование, составление сметы и подготовка. Изменится только наполнение работ. Вот из чего состоит такой ремонт.
Монтаж гипсокартонных конструкций. Это различные короба для труб, декоративные ниши и другие элементы, предусмотренные дизайн-проектом. Их может и не быть, но, если они есть, с них стоит начать.
Финишное выравнивание. Стены и потолок стоит выровнять так, чтобы подготовить к поклейке обоев или окрашиванию. При этом в сухих зонах используют шпаклёвку, а в мокрых — только штукатурку: она лучше выдерживает перепады влажности.
Плиточные работы. Плитку обычно кладут раньше, чем клеят обои или красят стены. Дело в том, что это довольно пыльные и грязные работы: если в других местах квартиры уже будет чистовая отделка, её можно случайно испортить.
Обустройство потолка. В помещениях отделка идёт сверху вниз: первым делом красят и штукатурят потолок. Если вы планируете натяжные потолки, порядок может чуть измениться — тут многое зависит от технологии.
Покрытие стен. Когда потолок покрашен и отделан, можно переходить к стенам. На них укладывают обои или декоративную штукатурку, а иногда просто красят. Установка дверей. Во время ремонта в новостройке двери иногда монтируют до укладки напольного покрытия. Иногда полотно нужно подгонять: не хочется, чтобы во время этого процесса пострадал паркет или ламинат.
Укладка напольного покрытия. После установки дверей кладут финишный пол, монтируют плинтусы и порожки. Ремонт в новостройке на этом этапе считается почти законченным.
Монтаж техники и сантехники. Напоследок оставляют установку конструкций, которые нужны для повседневной жизни: унитазов, раковин, котлов отопления, вытяжки. На этом же этапе монтируют встроенную мебель и технику, а бытовые приборы подключают к коммуникациям.
Когда всё готово — в квартиру можно ввозить оставшуюся мебель и заезжать самим.
Ремонт в новой квартире с чистовой отделкой
Бывает так, что застройщик уже сделал ремонт в новостройке, но покупателям он не нравится. Это распространённая ситуация: отделка обычно базовая и довольно простая. Она может не отвечать потребностям новых жильцов.
В таком случае к перечисленным этапам добавляется ещё один — демонтаж старого ремонта. Нужно вывезти мебель, отключить и убрать технику, снять обои в той комнате, которую будут ремонтировать. А после этого пройти те же шаги, что описаны в блоках выше.
Краткие выводы
- Ремонт в новостройке лучше проводить не сразу после возведения дома, чтобы материалы успели дать усадку.
- Начинать всегда стоит с проектирования и планирования, а ещё с составления сметы.
- Если отделка черновая, работ будет больше: выравнивание стен, разводка коммуникаций, шумо- и гидроизоляция.
- Если отделка предчистовая, можно ограничиться чистовыми работами: уложить покрытия на стены и пол, поставить двери и смонтировать технику.


